Топка ТЧЗМ-2-2,7/8,0 в Магадане

Топка ТЧЗМ-2-2,7/8,0 изготавливается из жаропрочных стальных сплавов. Такие изделия необходимы для обогрева промышленных объектов, складских и подобных помещений. Топки работают вместе с твердотопливными котлами и являются важной частью отопительной системы. Они обеспечивают нагрев теплоносителя, который подается котлом в общую систему обогрева объекта.

Цена:
Цена не указана
Количество:
Отправляя свои личные данные через формы на сайте, Вы даёте своё согласие на обработку персональных данных согласно Федеральному закону №152-ФЗ «О персональных данных» от 27.07.2006 г. в редакции от 01.07.2017.

Устройство и принцип работы

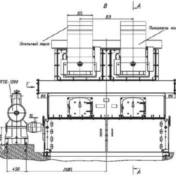
Конструкция ТЧЗМ-2-2,7/8,0 включает раму, состоящую из двух щек. Они соединены между собой расположенными поперечно балками. Подача топлива осуществляется за счет полотна колосникового типа, а также двух валов. Кроме того, подача топлива осуществляется за счет работы забрасывателя и предпотолка.

Принцип работы все моделей данного типа заключается в непрерывной подаче топливного материала.

Особенности и преимущества

Представленные модели топок ТЧЗМ-2-2,7/8,0 имеют простую конструкцию, которая крайне редко ломается. Кроме того, изделия отличаются энергоэффективностью и не требуют использования больших объемов топлива. Однако основные особенности и преимущества продукции следует описать подробнее:

  • В качестве топливного материала применяется каменный и бурый уголь. При этом размеры фрагментов угля не должны превышать 5 см. Есть условия по включениям мелочи. В общей массе подаваемого угля, такой мелочи должно быть не более 60%;
  • Эффективность отлично демонстрируется потерей тепла от механического недожога. Так, данный показатель не превышает 10%;
  • Модели ТЧЗМ-2-2,7/8,0 можно настраивать на определенный режим работы, в зависимости от нужной температуры. К примеру, изделия способны работать на 25% от предельной мощности. При этом они отлично переносят интенсивную эксплуатацию и способны годами работать на 100% предельной мощности;
  • Подача топливного материала осуществляется механическим и пневматическом способом. В последнем случае это позволяет избавиться от пыли, поскольку при подаче она развеивается.

Таким образом, данные изделия ТЧЗМ-2-2,7/8,0 могут работать на любом промышленном объекте. Они прослужат 10 и более лет, не потребовав ремонта или замены. При необходимости всегда можно выполнить ремонт топки за счет деталей, представленный в каталоге сайта.

Размещение и установка

В длину данные модели ТЧЗМ-2-2,7/8,0 имеют 2 и более метра. Они требуют пространства порядка 15 м² для размещения. Поэтому, для них нужно предусматривать отдельную зону вблизи отопительного котла.

Сбор топки осуществляется на месте. Для этого рекомендуется заказывать услуги мастеров компании. Они выполнят монтажные работы, а также тестовые запуски и проверят работоспособность изделия в различных режимах работы.

Эксплуатация и техническое обслуживание

Конструкция изделия ТЧЗМ-2-2,7/8,0 очень прочна и отличается простотой. Поэтому, они не требуют постоянного контроля за своей работой. Техническое обслуживание рекомендуется проводить один раз в 6 месяцев или раз в год.

В ходе эксплуатации топка может работать на максимальных значениях мощности без риска поломки. Кроме того, ее конструкция исключает возгорания.

Купить топку ТЧЗМ-2-2,7/8,0

Купить любую модель данных топок ТЧЗМ-2-2,7/8,0 можно по каталогу компании. Для этого достаточно запросить обратный звонок или позвонить по многоканальному номеру телефона.

Характеристики
Серия: ТЧЗМ
Вид топлива: Бурый угольКаменный угольАнтрацит
Диапазон изменения нагрузки: 25-100 %
Коэффициент избытка воздуха за топкой, не более: 1,35-1,5
Потери тепла от химического недожега, не более: 0,5 %
Потери тепла от механического недожега: 7 %
Влажность топлива, не более: 40 %
Зольность топлива, не более: 35 %
Содержание мелочи (0-6 мм), не более: 60 %
Максимальный размер куска: 40 мм
Ширина колосниковой решетки: 2700 мм
Длина колосниковой решетки: 8000 мм
Активная площадь колосниковой решетки: 19,9 м²
Ширина забрасывателя: 600 мм
Габаритные размеры: 9620х3160х4360 мм
Масса: 33400 кг
Вид топки: Механическая
Схемы
Комплект поставки

Города поставок

Москва
Пн-Пт 09:00 - 18:00
Сб 09:00 - 17:00
Карачаево-Черкесская Республика
Пн-Пт 09:00 - 18:00
Сб 09:00 - 17:00
Екатеринбург
Пн-Пт 09:00 - 18:00
Сб 09:00 - 17:00

Совершите покупку за 4 шага

Шаг 1
Выберите товары из каталога
Шаг 2
Поместите нужные вам товары в корзины
Шаг 3
Укажите свои контактные данные в форме обратной связи
Шаг 5
Ожидайте звонка от менеджера для оформления покупки

Похожие товары

Топки ТШПМ
Топки ТШПМ
Цена от 0 руб.
Топки ТЧЗМ
Топки ТЧЗМ
Цена от 0 руб.
Топки ТЛПХ
Топки ТЛПХ
Цена от 0 руб.
Вы смотрели эти товары
Вентиляторы промышленные
Вентиляторы дутьевого типа ВД-2,8-7,5/3000 предназначены для использования в котельной. Устройства имеют корпус специальной спиральной формы, который позволяет получить высокую производительность во время работы. Благодаря данным вентиляторам можно обустроить эффективную и регулируемую подачу воздуха в топки разных котлов.
Промышленные насосы
Консольный насос типа К 200-150-250 успешно применяется для перекачивания чистой воды, и жидкостей, которые по своей плотности — аналогичны значению воды. Насосы такого класса достаточно популярны и пользуются большим спросом, поэтому они выпускаются различными производителями. Устройства используются в промышленных и бытовых масштабах, в гидравлических системах, благодаря своему удобству и простоте эксплуатации.
Циклоны
Циклон ЦН-24-800-1УП — это устройство, которое предназначено для очистки газового потока от частиц пыли, размер которых более 20 мкм. Данное очистное устройство не предназначено для высокой степени очистки газов от загрязняющих веществ, применяется как первая ступень очистки газа от пыли для дальнейшей дезактивации или как очистное сооружения на предприятиях, где есть обширная санитарно-защитная зона и возможности выбрасывать загрязнённые газовые потоки в атмосферу. Чаще всего применяется данная модель циклона на предприятиях черной и цветной металлургии, при изготовлении строительных материалов, в машиностроительной промышленности, при транспортировке вредных мелкозернистых вредных веществ, а также в нефтяной и химической индустрии.